欢迎您进入上海永兴正德建筑安装工程有限公司 

安装服务一条龙 助力建筑行业

变形缝设计、定制、制造、安装首选服务商

全国咨询热线
13524402076
产品中心
<
>

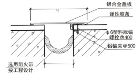
IL1

  • 产品详情


咨询: IL1

*为必填项

*联 系 人
*手机号码
咨询内容

上海永兴正德建筑安装工程有限公司    沪ICP备2025149782号-1

电话:13524402076  地址:上海市闵行区闵北路88弄